
Tipologías
25 UNIDADES
4 Monoambientes | 17 Dos Ambientes | 4 Tres Ambientes

Monoambiente
PLANTA: 1 PISO | BLOQUE 4
Superficie cubierta: 28,71 m2.
Superficie Descubierta: 12,03 m2.
Superficie Total: 40,74 m2.
Tipología G

Monoambiente
PLANTA: 2, 3 y 4 PISO | BLOQUE 4
Superficie Cubierta: 26,27 m2.
Superficie Descubierta: 2,44 m2.
Superficie Total: 28,71 m2.
Tipología G

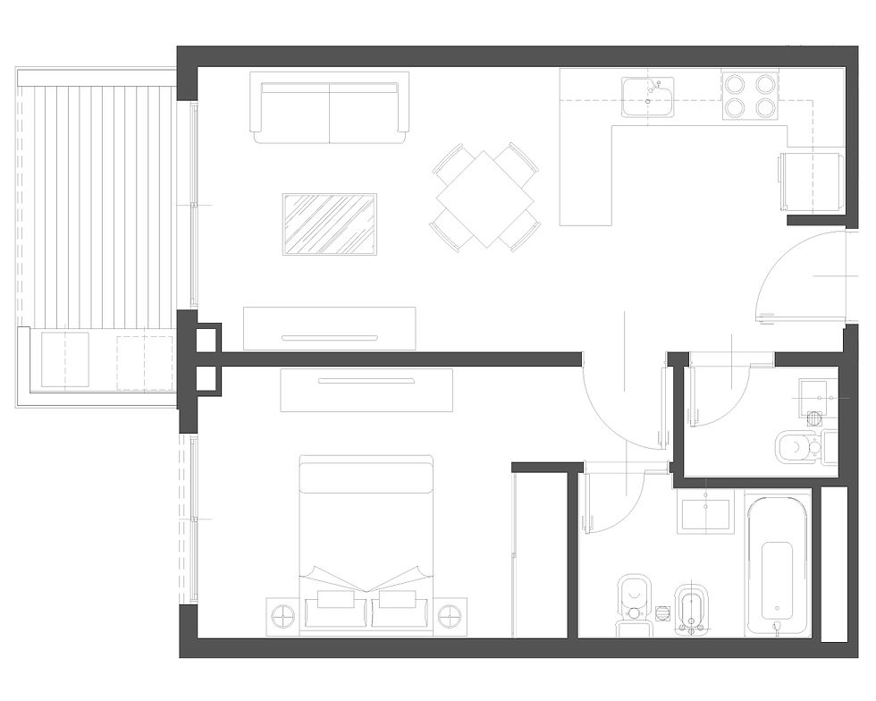
Dos Ambientes
PLANTA: 1 PISO | BLOQUE 3
Superficie Cubierta: 45,42 m2.
Superficie semiCubierta: 5,36 m2.
Superficie Descubierta: 26,63 m2.
Superficie Total: 77,41 m2.
tipología E

Dos Ambientes
PLANTA: 1 PISO | BLOQUE 4
Superficie Cubierta: 37,48 m2.
Superficie semicubierta: 9,6 m2.
Superficie Total: 47,08 m2.
tipología F

Dos Ambientes
PLANTA: 2 PISO | BLOQUE 1
SUPERFICIE Cubierta: 50,86 m2.
SUPERFICIE semicubierta: 19,81 m2.
SUPERFICIE total: 70,67 m2.
tipología A

Dos Ambientes
PLANTA: 2 PISO | BLOQUE 1
SUPERFICIE Cubierta: 51,12 m2.
SUPERFICIE semicubierta: 26,92 m2.
SUPERFICIE Total: 78,04 m2.
tipología B

Dos Ambientes
PLANTA: 2 PISO | BLOQUE 1
SUPERFICIE Cubierta: 48,33 m2.
SUPERFICIE semicubierta: 20,29 m2.
SUPERFICIE Total: 68,62 m2.
tipología c

Dos Ambientes
PLANTA: 2 Y 3 PISO | BLOQUE 3
SUPERFICIE Cubierta: 45,42 m2.
SUPERFICIE semicubierta: 6,09 m2.
SUPERFICIE Total: 51,51 m2.
tipología E

Dos Ambientes
PLANTA: 2 Y 3 PISO | BLOQUE 4
SUPERFICIE Cubierta: 37,48 m2.
SUPERFICIE semicubierta: 9,6 m2.
SUPERFICIE Total: 47,08 m2.
tipología F

Dos Ambientes
PLANTA: 3 PISO | BLOQUE 1
SUPERFICIE Cubierta: 50,86 m2.
SUPERFICIE semicubierta: 9,42 m2.
SUPERFICIE Total: 60,28 m2.
tipología A

Dos Ambientes
PLANTA: 3 PISO | BLOQUE 1
SUPERFICIE Cubierta: 51,12 m2.
SUPERFICIE semicubierta: 13,45 m2.
SUPERFICIE Total: 64,57 m2.
tipología B

Dos Ambientes
PLANTA: 3 PISO | BLOQUE 1
SUPERFICIE Cubierta: 48,33 m2.
SUPERFICIE semicubierta: 9,66 m2.
SUPERFICIE Total: 57,99 m2.
tipología C

Dos Ambientes
PLANTA: 4 PISO | BLOQUE 1
SUPERFICIE Cubierta: 50,86 m2.
SUPERFICIE semicubierta: 19,81 m2.
SUPERFICIE DEScubierta: 50,88 m2.
SUPERFICIE Total: 121,55 m2.
tipología A

Dos Ambientes
PLANTA: 4 PISO | BLOQUE 1
SUPERFICIE Cubierta: 51,12 m2.
SUPERFICIE semicubierta: 26,92 m2.
SUPERFICIE DEScubierta: 62,88 m2.
SUPERFICIE Total: 140,92 m2.
tipología B

Dos Ambientes
PLANTA: 4 PISO | BLOQUE 1
SUPERFICIE Cubierta: 48,33 m2.
SUPERFICIE semicubierta: 20,29 m2.
SUPERFICIE DEScubierta: 50,88 m2.
SUPERFICIE Total: 119,50 m2.
tipología C

Dos Ambientes
PLANTA: 4 PISO | BLOQUE 3
SUPERFICIE Cubierta: 45,42 m2.
SUPERFICIE semicubierta: 6,09 m2.
SUPERFICIE DEScubierta: 26,05 m2.
SUPERFICIE Total: 77,56 m2.
tipología E

Dos Ambientes
PLANTA: 4 PISO | BLOQUE 4
SUPERFICIE Cubierta: 37,48 m2.
SUPERFICIE semicubierta: 9,6 m2.
SUPERFICIE DEScubierta: 39,32 m2.
SUPERFICIE Total: 86,40 m2.
tipología F

Tres Ambientes
PLANTA: 1 PISO | BLOQUE 2
Superficie Cubierta: 72,88 m2.
Superficie semicubierta: 10,35 m2.
Superficie Descubierta: 37,01 m2.
Superficie Total: 120,24 m2.
Tipología d

Tres Ambientes
PLANTA: 4 PISO | BLOQUE 2
Superficie Cubierta: 72,88 m2.
Superficie semicubierta: 10,35 m2.
Superficie descubierta: 44,44 m2.
Superficie Total: 127,67 m2.
Tipología d

Tres Ambientes
PLANTA: 2 Y 3 PISO | BLOQUE 2
Superficie Cubierta: 72,88 m2.
Superficie semicubierta: 10,35 m2.
Superficie Total: 83,23 m2.
Tipología d
Plantas Generales
PLANTA: BAJA

SUPERFICIE Cubierta: 595,66 m2.
SUPERFICIE semicubierta: 73,16 m2.
COCHERAS: 20 Unidades.
ACCESIBILIDAD: 2 Ascensores Y UNA Rampa Discapacidad.
Plantas Generales
PLANTA: 1 PISO

AMENINIES: Co-Working, Gimnasio, Terrazas, Pileta, Jardín + 4 UNIDADES
1 MONAMBIENTE (TIPOLOGÍA G) 1 TRES AMBIENTES (TIPOLOGÍA D)
2 DOS AMBIENTES (TIPOLOGÍA E Y F)
Plantas Generales
PLANTA: 2 PISO

7 UNIDADES:
1 MONOAMBIENTE (TIPOLOGÍA G)
5 DOS AMBIENTES (TIPOLOGÍA A, B, C, E Y F)
1 TRES AMBIENTES (TIPOLOGÍA D)
Plantas Generales
PLANTA: 3 PISO

7 UNIDADES:
1 MONOAMBIENTE (TIPOLOGÍA G)
5 DOS AMBIENTES (TIPOLOGÍA A, B, C, E Y F)
1 TRES AMBIENTES (TIPOLOGÍA D)
Plantas Generales
PLANTA: 4 PISO

7 UNIDADES:
1 MONOAMBIENTE (TIPOLOGÍA G)
5 DOS AMBIENTES (TIPOLOGÍA A, B, C, E Y F)
1 TRES AMBIENTES (TIPOLOGÍA D)
Plantas Generales
PLANTA: 5 PISO

ÚLTIMO PISO:
TERRAZAS PRIVADAS UNIDADES
AMENINIES: TERRAZA COMÚN CON SUM,
SOLARIUM Y PARRILLA
